
IBAG 1500 x 5000 x 3
Maschinenbeschreibung:
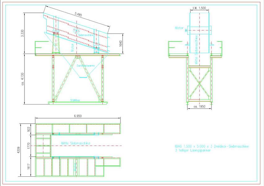
Gebrauchte Dreidecker-Siebmaschine Fabr. IBAG 1500x5000x3. Ausführung als 3-teiliger Längsspanner. Inklusive Stahlbau, Federböcke, Rahmen mit Abdeckhauben für Oberdeck und Durchsatzwanne mit Gummierung.
Hersteller: IBAG
Type: 1500x5000x3
Antrieb: 15 kW Direktantrieb
Drehzahl: 964 U/min
Sieblänge: 5.000 mm
Siebbreite: 1500 mm
Anz. Siebdecks: 3
Ausführung: 3-teiliger Längsspanner
Siebbelag: Stahlsiebgewebe
Trennkorn: Oberdeck 34mm
Trennkorn: Mittendeck 24 mm
Trennkorn: Unterdeck 19mm
Druckfedern: 8 Stück inklusive
Aufschlagfeld: 300 mm im Oberdeck
Gewicht: ca. 6 – 7 t
Transportlänge: 6200 mm
Transportbreite: 2300 mm
Transporthöhe: 1550 mm
Sonstiges:
Inklusive:
- 1 Stück Federböcke Aufgabe- und Ablaufseitig
- 1 Stück Durchsatzwanne zur Siebmaschine mit 15mm Gummierung
- 1 Stück Stahlbau zur Aufnahme der Siebmaschine mit Treppe, Geländer und Wartungsbühne
- 1 Stück Rahmen mit Abdeckhauben für Oberdeck






